Niedrig(st)energiehaus Achau


Kurzinformation:

 

Planung: Arch. Dipl.-Ing. Heinz Geza Ambrozy, Mitarbeit: DI Andrea Eggenbauer

Statik: DI Robert Salzer, www.robertsalzer.at

Konstruktion: ost-nord-westseitig: Mineralische Speicherwände; Südfassade: thermisch entkoppelte, vorgefertigte Holzrahmenkonstruktion; Passivhaustaugliche Wand- und Dachelemente

U-Werte: mineralisch: 0,15 W/m2K; bzw. Holz: 0,12 W/m2K; Dach: 0,097 W/m²K;

Energiekennzahl: 18 KWh/m²a

Kosten: 1 690 € / m2 exkl. MWSt. bezogen auf die Gesamtnettonutzfläche (141,6 m²)

Bauzeit: 2007

Beschreibung:

 

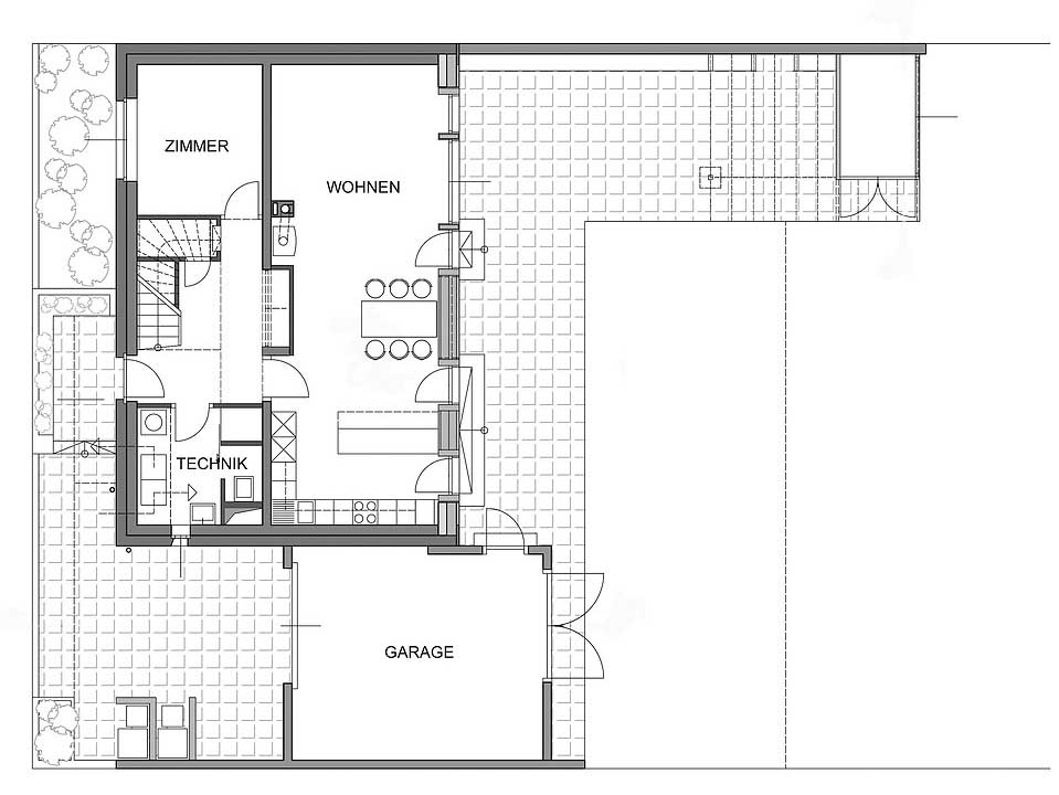
Privatheit im ausufernden Neubaugebiet wurde in diesem Wohnhaus durch die vorgegebene geschlossene Bebauung ermöglicht. Die Mauer an der Süd-Ost Seite und die vorgezogene Garagenbox bilden so eine Hofsituation und gewährleisten der Familie geschützten Freiraum. Die Begrünung zur Straße schafft eine natürliche Pufferzone im mit 2 Meter festgelegten Vorgarten.

Der über die gesamte Fassadenlänge durchgehende Wohnbereich im Erdgeschoß ist zum Garten hin nach Südwesten orientiert, darüber befinden sich die Kinderzimmer, Nebenräume sind im Norden situiert.

 

Das „mineralische U“ west-nord-ostseitig des nicht unterkellerten Baukörpers bildet die Speichermasse, während die großzügig geöffnete Südfassade als thermisch entkoppelte Holzrahmenkonstruktion konzipiert ist.

Das Gebäude ist als Niedrigstenergiehaus mit einer Energiekennzahl von 18 KWh/m²a mit Passivhaus-komponenten ausgeführt. Eine Solewärmepumpe deckt den Restwärmebedarf.